John Haryasz

I’m a landscape designer based in New England and working throughout the country.

Click below to see my work or contact me today.  

Portfolio
Contact

Testimonials


“It was a pleasure to work with John, he's very thorough!” – Jodi Stammer

John is a pleasure to work with. I would definitely hire him again.” - Don Chouinard

“If you are considering hiring John, I highly recommend doing so.” - Chuck Price

“Always does an excellent job. Great communication and highly recommended! Will hire again.”- Robert Fisher

“You do great work and keep your promises. When I need similar work… I will contact you first.”- Chaz Brown


Experience

After more than a decade of landscape design experience, I’ve had the chance to play a key role in a wide range of projects.

From designing small private garden spaces to creating comprehensive site plans for large properties, my designs have shaped landscapes nationwide.  

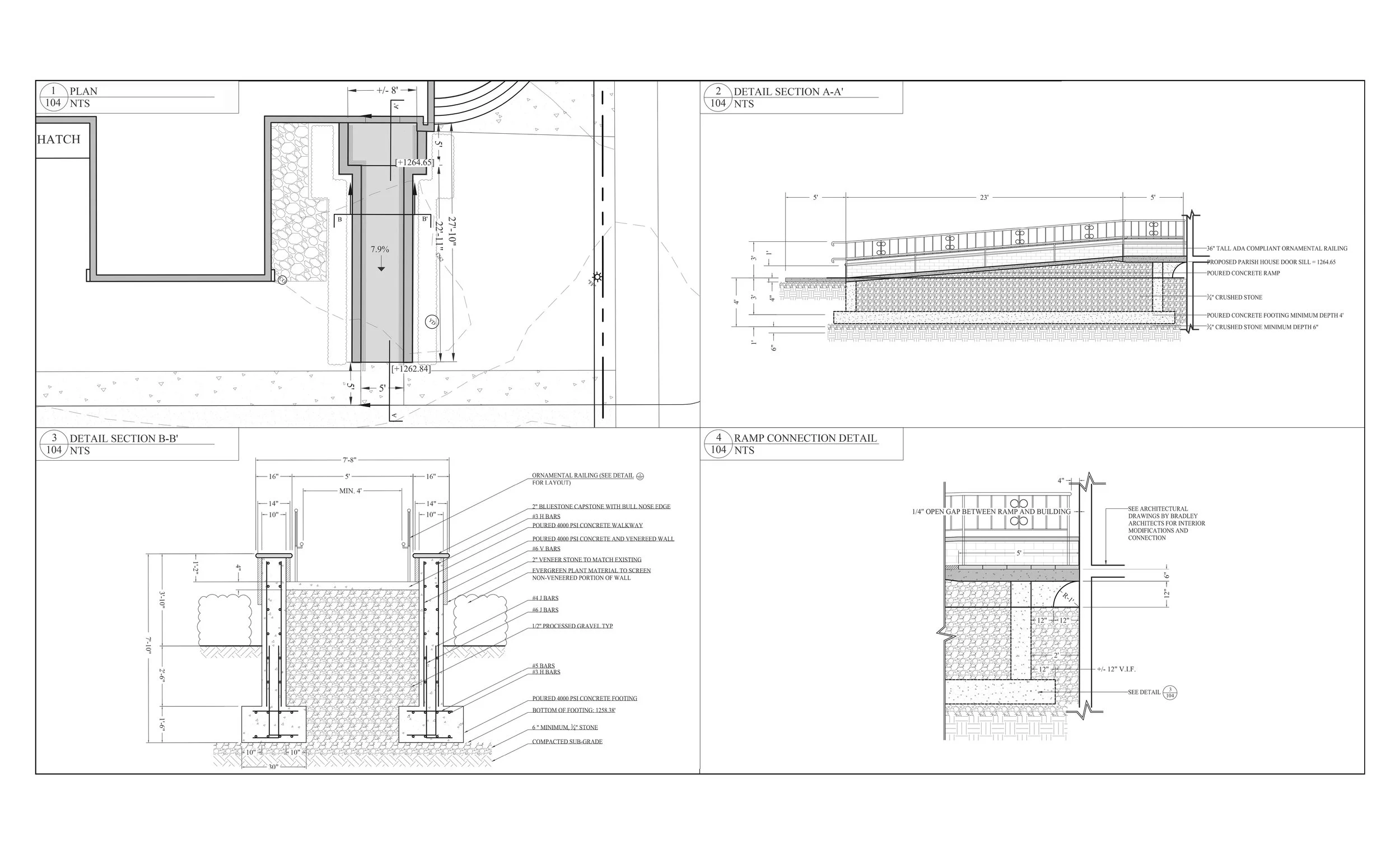
My design for an ADA accessible ramp

Completed construction

See More of this Project

My professional career began in 2017 after I graduated from UMass with a Bachelor of Science in Landscape Architecture.

Shortly after graduation, I began working for a small landscape architecture firm in Berkshire County.

Although our team included only a few members, we collaborated to create designs for properties of every size.  

In my role, I contributed to all aspects of landscape design projects for private residences, world-class health spa resorts, nationally recognized historic properties, and more.

My design for a hilltop health spa and resort

An aerial image showing construction progress

See More of this Project

In early 2020, I began offering my landscape design services independently.

Through that work, I supported large-scale projects throughout the country through detailed design and project coordination.

My design for a pedestrian walking path in Montana

An aerial image showing construction progress

See More of this Project

Although successfully completing projects as far west as Idaho is rewarding, my approach is now more locally focused.

I currently offer landscape design services throughout New England and Upstate New York.

Whether you are a property owner, a design professional, or a builder of any kind, if you have a project that matches my skill set, I encourage you to contact me.

Contact

Process

Click to expand the sections below and learn what you can expect when working with me.

  • Whether you choose to work with me or not, I’m happy to meet with you for a free consultation. To make the most of that consultation, we should meet in person on the property you’re interested in designing. During that time, we can talk about your goals and how my design work can help you achieve them.

  • If you choose to work with me, I’ll take measurements and photos of the property in its current state. With that information, I’ll create an existing conditions plan and use it to generate design ideas we can explore until we find the best one. Alternatively, if you have recently conducted a survey of the property, we may be able to skip this step entirely.

  • In this phase, I’ll use the existing conditions plan to develop conceptual designs for the property. While I’ll do most of the design work, collaboration is essential as well. That’s why you’ll get plenty of opportunities to discuss design decisions with me as the process unfolds. Conceptual design development continues until we agree on the best path forward.

  • Most conceptual designs allow you to envision a final product without providing the details a builder would need to begin construction. After agreeing to move forward with a conceptual design, I can provide the construction drawings necessary to bring your vision into reality.

  • Although I don’t build landscape projects myself, I will work with you to find the right contractor, if necessary. I’ll also gladly oversee the construction of landscape design projects to help overcome any challenges that arise and ensure a quality final product.

Featured Projects

Parish House Ramp

An ADA-compliant ramp and site plan for a community landmark listed on the National Register of Historic Places

See More

Great Estate Resort

A complete site plan, grading, and stormwater management, transforming an 80+ acre estate into a work-class health spa resort

See More

Community Walking Path

An apartment complex's emergency access drive doubles as a meandering walking path through the Montana landscape

See More

Send Me a Message

Use the form below to send me a message if you'd like to work with me or learn more about my experience.